
深圳是一个新生的移民城市,包含潮汕、岭南、湖湘等多种亚文化单元,但始终未形成占有绝对优势的主体文化。这个城市共同体得以形成和发展的源动力并不是中国传统城市当中的血亲与宗族根源,而是一种暗含在深圳效率和深圳速度背后的深圳精神——这一现实主义的文化根基构成了这座城市特殊的人地情感纽带。
△ 摄影:UK Studio
撰文 张思慧
一方面,深圳前所未有的人口增速造成了土地资源紧张、教育用地不足等现实困境。另一方面,这种密集的城市特征也成为深圳精神所提出的包容性、开放性、流动性与多元性的物质载体,构成了深圳的现实背景。与此同时,亚热带气候条件下湿热的城市氛围与密林丛生的自然环境则赋予了这座城市先天的地域特质。故而,这种“外在”的由日常实践逐渐建构起来的高密度城市环境与其“内在”的地理文化形成的双重现实,共同构成了深圳地域实践的基础。“筑造的性质是要由那些自发地要求筑造的诸物的本质来决定。”[1] 深圳当下的教育建筑设计,即是通过对新时代更具开放性与包容性的教育需求和“高密度”“亚热带”这一双重现实所构成的地域本质的整合与汇聚。进而,通过这一差异性的建构确立深圳地区亚热带高密度立体教育中心的身份认同 [2]。本案以此为线索展开对深圳国际交流学院新校区的设计思考,通过对教育建筑生长与容纳本质的反思、建筑与城市和自然的共生关系、高密度建筑当中活力的形成、校园公共空间的营造、气候适应性等多个问题的探索,形成我们对当下深圳教育建筑的现实回应。
△ 项目视频 ©UK studio+黄志聪
一、教育的容器-生长与容纳
“教育即生长——教育是持续不断的生长过程,在生长的每个阶段,都以增加生长的能力为其目的。” [3]生长是万物的希望,也是自然得以维系的动力,其构成了校园建筑的精神内核。建造是一种与生长相关的人类活动,海德格尔曾用德语单词“Bauen”来表达“栖居”的含义,本身包含有“建造”(cultura)和“种植”(aedificare)两种存在方式,即“船舶和庙宇的建造”和“照看果实的生长”[1]。校园的建造是一次物理的生长过程,从建造之日起到建造活动的完结便形成了建筑自身的第一次生长,达到人力建造的完满状态,成为庇护生命的居所。校园建筑的生长过程本身是在铸造一个能够用以承载教育的容器。与传统校园不同,我们所处的时代需要更具开放性与包容性的校园空间,茂密的植被、温暖的阳光和流动水源,关爱和情感的交流都成为教育容器中不可或缺的内容。因而,校园建筑不仅需要提供满足教育教学与日常生活需要的功能性空间,还需要容纳可以释放天性和肆意奔跑的户外公共空间,塑就丰富、灵活的校园。在深国交的校园中,学生依托校园主体进行的壁画创作与空间再造活动,以及植物、土壤和建筑之间相互融合的过程不断丰富着校园空间的设计,使其始终处于一种未完成的生长状态。这种自然、建筑与人相互滋养、彼此融合的过程成为国交新校园对“生长”与“容纳”这一教育主题的回应。

二、场所回应-边界与留白
边界
校园作为城市当中的保护区,需要独立性与完整性。同时,校园又是社区形成与发展的重要组成部分,硬性的校园边界会破坏其与周边场地基质之间互补性与共生关系。过度的保护和围合也会阻碍青少年对自由和开放的需要,难以形成真正的校园归属感。因而,校园建筑需要在“保护”与“自由”的两难之间建立一种平衡,在保障校园内部完整性与私密性的同时创造积极的城市空间界面和开放的校园空间氛围。深圳国际交流学院新校区位于福田区,南侧与东侧紧邻城市次干道,地势呈西北高、东南低的趋势,其中南北高差近3米,东西高差近10米。建筑利用自然地势,将校园的“地面层”与西侧高地衔接形成“平台层”,在垂直维度与南北两条城市道路自然分离,从而保证了校园的私密性和完整性。外围水系、植被与平台层的落影共同形成的柔性边界,既构成了环绕在校园外围的保护屏障,也丰富了边界区域的空间层次,形成校园建筑向城市空间的缓慢过渡。


△ 摄影:UK Studio
留白
在校园内部利用基地高差形成的双层地表,为自然持守一道边界。在紧张的用地条件下,保留一片可以供土壤和城市呼吸的庭院。设计将这部分留白向垂直方向延展,与核心庭院形成连续的界面,在校园内开垦出一片可供学生自由奔跑的“山丘”。通过台阶将平台上、下“两层”户外空间连在一起,形成绵延不尽、高低起伏的自然坡地。同时,利用地面的起伏营造半地下的聚集空间,拓展自然地面的维度,“山丘”的低洼处结合踏步形成室外观演空间,“山丘”高起的部分形成使用空间。结合结构的需要,在塔楼下方布置办公空间,将体育馆、剧场等大跨度空间布置在两楼之间的空白区域,并将这部分屋面拓展为校园户外运动场地。因而,双重地表的存在,不仅为校园提供了更多的户外活动空间,同时形成了校园与自然之间的弹性边界,使得校园-自然-城市形成相互激发的整体。

△ 摄影:UK Studio
三、拥挤的活力-叠层与并置
深圳国际交流学院建筑用地面积2.18万平方米,建筑面积10万平方米,容积率接近4。在紧张的用地条件下,利用场地的高差通过垂直、水平两个方向组织空间,实现不同尺度空间之间的调和,同时最大化地利用基地现有条件实现建筑使用功能的拓展,满足学校对教学、生活、户外活动等不同空间功能的需求。进而,通过两个维度的空间线索,交错生成多种空间组合机制,创造更加丰富的校园空间形态。

△ 效果图 - 平台层平面 ©李晓东工作室


△效果图 - 剖面 ©李晓东工作室
叠层
在垂直维度,将不同尺度的空间纵向叠加,形成自下而上的生长势态。平台层以下与核心庭院形成的双层地表隐射为建筑的大地区域,如同建筑的“根部”,与土壤和水景契合在一起,留有较多的活动空间,可以自由地呼吸并为其他动植物留存生长的空间。平台层外围的结构柱托举起一圈悬挑空间,与外围水系植被结合在一起成为城市的公共休闲步道。这部分区域具有较高的公共性,不仅联系校园南北两区、疏散集中人流,同时容纳体育馆、剧场、画廊、咖啡厅、接待区、办公区等大尺度空间和对外服务空间。平台层以上是单元式空间,包括8层的教学楼、13层宿舍楼以及25层教师公寓。这一区域如同植物的枝叶,密集而均匀,同时需要更多的光照,构成校园的视觉主体。相比底层地面区域的喧闹与活力,上层接近天空的单元空间更为静谧,适合私密性较高的教室和居住空间,形成均质的单元的空间。地面层与塔楼之间的虚体形成的中层空间成为建筑的“茎部”,5公里的环形跑道悬于其上,艺术教室与健身空间被设置为5个透明的异型空间,穿插在跑道两侧,成为平台空间的活动力源。不仅为校园创造了更多的室外活动场地,也是上下两种空间氛围之间的调节机制。同时,平台层也是校园内通往各个功能单元的中转站,每一个独立的交通核都是通向指定空间的端钮,结合校园标识系统和立面色彩的设计形成清晰的空间定位。


△ 摄影:UK Studio
并置
水平方向,利用校园核心庭院将校园内部分为南北两区,其中南区是教学区,包括主要的教学空间、礼堂、学生课外活动空间和学校的日常管理接待空间;北区包括外教宿舍、学生宿舍、食堂等生活空间,两区之间通过平台层与地面层形成的双层地表连接起来,将校园中所容纳的学习与生活这两种日常行为整合在一起。进而,通过不同层级的院落组织与纵向的空间秩序编织在一起,形成四维立体的虚实关系。平台层以下,结合基地的留白和双层地表形成的连续界面组织院落空间。包括两区之间的核心庭院,西南角入口接待庭院,东南内向型院落空间,三个院落各自独立又相互关联。在功能上,院落的位置对应主要人流集散区,与校园内三个竖向分层在必要的时候可作为室外活动场所和内部观演空间的延伸部分。平台层以上,四栋楼宇之间的间距形成另一个维度的院落空间,各层的平台与连桥和底层院落叠加在一起,形成一个多维的空间系统,时而错动、时而交叠,形成清晰又丰富的空间体验。

△ 摄影:UK Studio
交织
在国交校园中,通过水平和纵向两个方向的拓展,不同的空间线索在两个维度交织,形成层层叠叠的惊喜,各种惊喜之间是婆娑的树影与奔跑的少年。正如卡尔维诺在《看不见的城市》中描写的空间景象:“行走的路线绝不只限于一个层面上,而是一路上有上上下下的台阶,有驻足的平地,有驴背式的罗锅桥,还有架空的路……”[4]。水平和纵向两个方向的空间组织将不同的功能空间与院落合理地调配形成整体,形成正交的空间秩序,建立校园活动的基本规则和框架。在此之下,利用不同的交通动线彼此交叉,穿行于不同的空间单元之中。步道系统与运动流线组成一个环绕和穿行于校园内部不同维度的活力回环,形成斜线交叉环绕在校园空间框架之间组成完整的步道系统,将水平与垂直两个方向的空间系统连成整体。

△ 摄影:UK Studio
四、空间自主性-正式与非正式
学校开始于一棵树下,一个不自觉为老师的人与一些不自觉为学生的人讨论着他们对事物的领悟,这些学生希望他们的子女也能听听像他这样的人讲话,于是空间被建造起来,第一所学校因此产生;我们也可以说,学校的存在意愿早在那棵树下的人之前便有了……
正式与非正式
路易斯·康认为这种存在于树下的空间是教育空间的起始,树的存在暗示了自发的教育和分享行为。校园的本质是要激发讲授、聆听、分享的行为,而自发的教育和学习行为只有在适宜的空间环境下才会发生。现代教育建筑通过学科分化与功能组织形成校园的规则,校园即需要建立正式的空间规则来提升教育教学的效率和学校的管理机制,也需要空间的灵活性和自主性来提升校园的归属感为自发的教育行为创造可能性。固定的教育和日常生活可以在具体的、集约化的空间中进行,这类空间存在于上层塔楼区域的均质空间;而自发的教育活动是一种随机和零散的状态,对应于一种松散的、具有偶发性的空间场所。底层非正式空间形成的双层地表,以及平台层和地面的连续空间形成开放的空间界面,都成为自发活动的生发机制,跑道、户外活动场地、绿植区共同构成了校园内部非正式空间的聚集地。
相反相成
底层活力提供自发的土壤,顶层提供空间限定和围合,借用交通空间的多义性拓展增加交流的可能。通过静态的正式空间与动态的非正式空间建立对话机制,形成规则与自由之间的平衡。例如,教学楼南北楼之间的狭长空间,被悬于空中的图书馆与架设于两楼之间的5座高低错落的连桥分割,形成连续的空间变奏。平台层与地面层形成的双重地表结合标高的变化形成丰富多变的空间,每起伏都形成一个特定的场所,从东到西分布着艺术庭院、排球场、入口庭院、篮球场,形成一条纵贯东西的活力动线,与塔楼不断的空间变化相互呼应。同时每一个活动区域将教学楼两楼之间的狭长空间划分为不同的区域,附近的外廊和南北楼之间的连桥限定了这些空间,形成三面或四面的空中看台。课余活动时间,底层活力激发上层静态空间的活力,激发校园内交流与分享的可能性。在有限的基地面积,将交通空间转换为“非正式”的功能空间,提升空间的使用效率。



△ 摄影:UK Studio
五、生态策略-呼吸与遮蔽
“我步入丛林,因为我希望活得有意义,我希望活得深刻,汲取生命所有的精髓。” [5]在高密度的城市环境下,由于居住空间的短缺和对利益最大化的追逐,往往需要为每一个空间的让位填补功能的实体。最大的空间利用率,提供了更多的居住资源,但在无形之中削减了建筑生命体的活力和生命力。同时对于深圳而言,亚热带的气候特征塑造着这座城市的身份认同,建筑设计对于当地气候的回应,不仅是技术层面的思考,也包括更深层的人与自然关系的重建。
呼吸
自然中的空腔往往是动植物呼吸的管道,是生命体汲取营养、获得能量的管道,无论是人体还是自然物都有大量的孔隙。在高密度的建造方式中,不同尺度的空间在水平和垂直两个维度延展。底层架空的庭院、平台架空层与纵向的三个庭院,是贯穿校园两个维度的主要通风管道。在平台层以下的空间组织中,有意识地打开外围边界、形成对位的孔洞,并与水景、绿植相结合引导通风。底层房间包括体育馆、剧院、美术馆等大尺度空间,均可向院落敞开形成连续的空气对流。使得平台层形成一个四围通透的界面,与底层院落结合在一起。另一方面,建筑主体的教学楼、学生宿舍与教室宿舍三座塔楼都在不同层穿插布置2-4层通过的空中庭院,形成气孔,引导通风。这些空间的留白与植物和水景的设计结合在一起,成为可以驻足停留的户外公共空间。高密度空间的呼吸的管道,不仅回应了深圳的气候特征,也为生活在高密度空间中的日常生活创造了可以喘息的空间。

△ 摄影:UK Studio
遮蔽
在人类原始情感中,植被作为遮挡风雨的最初屏障,遮蔽风雨,给人安全感。之后,植物剥离出人的生活系统,筑造起水泥森林。孩童回归自然的保护和荫蔽,垂直绿化形成的遮阳系统,如同水系和落影定义的柔性边界。同时,在深圳这一气候炎热需要遮阳的低纬度地区,隔热尤为重要。建筑的使用过程也是植物生长的过程,施工完成的时期是建筑完成的时期,也是植物生长的开始。混凝土框架结构构筑起的建筑不仅是学生生活和学习的居所,同时也成为土壤和植物生长攀爬的容器。人工与自然互补,嵌入,相互依附,共同生长。教室两侧垂直绿化表皮设计形成生长在教学楼立面上的热空气滤层,并结合教学楼的双向外廊设计形成自遮阳系统,起到隔热作用的同时避免南侧炫光。另外,绿植的设计形成了教学空间与外部城市之间的天然屏障,使每一间教室都在植物的萦绕下形成更安静、私密的教学氛围。校园中绿植乔木形成的遮蔽不仅丰富了空间层次,同时起到降温隔热的作用。密集的垂直绿化使得个体在自然中找到庇护感,同时这种庇护又形成了一种有效的气候应对策略。


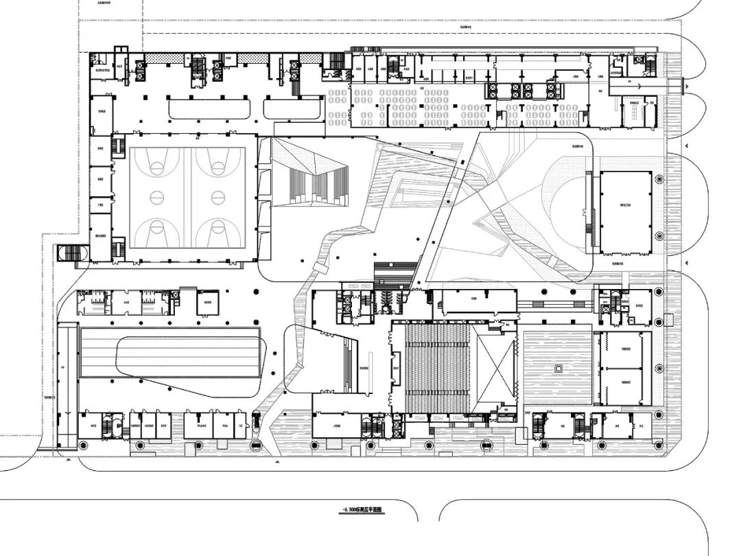
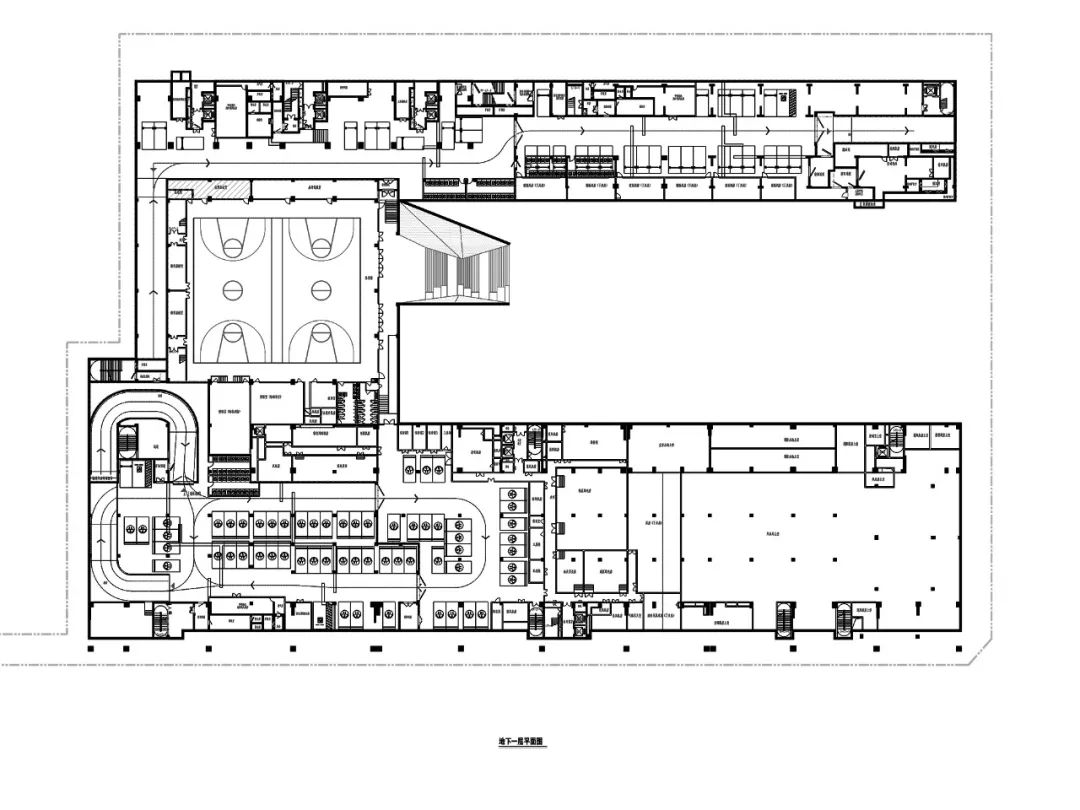
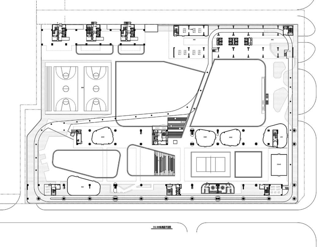
设计图纸 ▽










注释
[1] 邓晓芒. 西方哲学探赜[M]. 修订版. 北京:中国言实出版社,2021.
[2] 李晓东. 身份认同:自省的地域实践[J]. 世界建筑,2018(01):27-31.
[3] 杜威 J. 杜威教育文集[M]. 北京:人民教育出版社,2008.
[4] 卡尔维诺 I,张密 看不见的城市[M]. 南京: 译林出版社,2012.
[5] 梭罗 H D,孙胜忠 瓦尔登湖[M]. 上海:上海外语教育出版社,2004.
完整项目信息
项目名称:深圳国际交流学院新校区
项目类型:建筑
项目地点:深圳市福田区
设计单位:李晓东工作室
主创建筑师:李晓东
设计团队完整名单:张思慧、王古恬、陈梓瑜、李乐、张晨阳
业主:深圳国际交流学院
建成状态:建成
设计时间:2015年7月-2017年5月
建设时间:2018年1月-2020年9月
用地面积:2.18万平方米
建筑面积:10.28万平方米
其他参与者
建筑:深圳同济人
结构:深圳同济人
景观:李晓东工作室,合作:李靖
室内:李晓东工作室,合作:邵程,中孚泰
照明:深圳同济人
施工:中建二局
编辑 / 原源 视觉 / 李茜雅 校对 / 原源
本篇文章来源于微信公众号: 深国交